상가주택을 짓는 목적을 생각해 보자. 우선 단독주택에 살면서 아파트에서 누릴 수 없는 개성 있는 주거 생활을 누릴 수 있다. 그러면서 일층은 근린생활시설, 이층에는 다가구주택을 넣어 임대 수익을 얻을 수 있는 주거와 수익의 두 마리 토끼를 잡는 데 있다고 할 수 있다.
건축주가 바라는 집 짓기의 목표는 뚜렷하다. 단독주택은 우리 식구가 행복하게 살 수 있는 집이라야 한다, 근린생활시설은 장사가 잘 되어야 월세를 안정적으로 받을 수 있을 것이고 다가구주택은 세입자가 들락날락하지 않아야 할 것이다.
상가주택은 행복하게 살 수 있는 우리집, 장사가 잘 되는 근린생활시설과 세입자가 입주하면 잘 나가지 않는 다가구주택으로 확신할 수 있게 짓는 것이 목표가 되어야 한다.
행복하게 살 수 있는 집, 장사가 잘 되는 근린생활시설과 세입자가 입주하면 잘 나가지 않는 다가구주택으로 정말 설계할 수 있을까? 만약에 건축주가 이 조건을 걸고 설계를 의뢰한다면 건축사는 그런 집으로 지을 수 있다고 확답할 수 있을지 모르겠다. 그렇지만 이 조건이 충족되는 집으로 확신이 오지 않는다면 짓지 않아야 하지 않을까 싶다.
이번 에코델타시티에 짓는 상가주택은 건축주의 전폭적인 신뢰를 바탕으로 설계자가 최선을 다해 작업이 진행되었다. 건축주와 매주 수요일에 한 주 동안 진행된 내용으로 보고와 의견을 개진하는 시간을 가졌다. 계획 설계 2.5 개월, 실시 설계 1.5개월로 4개월의 설계 기간이 소요되었다.



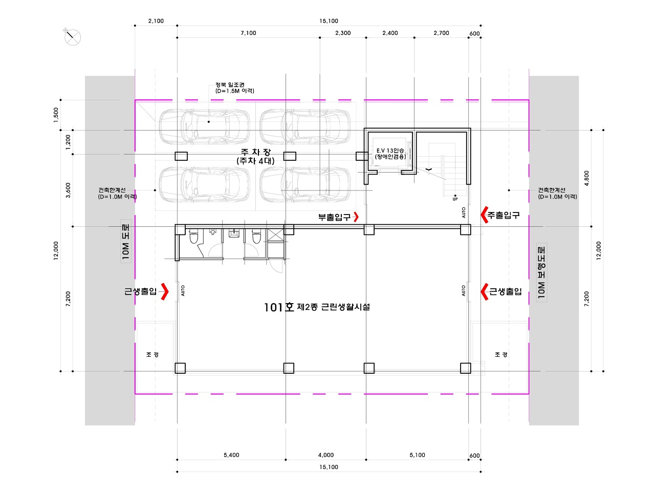
일층 근린생활시설 – 이런 공간에서 돈을 못 벌면 장사를 잘못하는 것이지요
일층 근린생활시설은 대지가 지구단위계획 상 단독주택용지이므로 연면적의 30%만 쓸 수 있다. 정북방향에 면한 부분에 코어와 주차장을 배치하고 나니 자리가 저절로 정해졌다. 남동쪽의 보행자 전용도로와 북서쪽 주도로를 연결하게 되는데 주출입구는 남동쪽이 되겠다.
일조건 높이제한으로 정북방향 인접대지와 1.5미터를 유지하기 위해 건축물의 높이는 9미터로 한정된다. 근린생활의 어떤 용도가 들어오더라도 층고가 3.6미터 이상 되어야 한다. 그렇지만 건축물의 전체 높이가 9미터로 한정되니 실내에는 천장을 설치하지 않는 쪽으로 극복하고 외부에는 독특한 디자인 처리로 4미터 롱다리의 시원한 외관이 만들어졌다.
남서쪽에 면한 인접대지 사이에는 띠 조경을 할 수 있도록 떨어뜨려서 담장 벽면과 조경이 어우러진 야간 조명 처리로 실내 분위기를 돋보이게 했다. 조경 공간은 코너에 植樹식수를 집중시켜서 출입구로 보행자의 시선을 끌 수 있도록 해 실내로 유입시키는데 도움이 되게 처리했다.
실내는 인접대지 쪽 담장과 조경, 조명이 어우러지며 분위기를 고조시키고, 외관은 4미터 높이 효과의 독특한 디자인과 조경이 보행자의 시선을 끌어 내부로 들이는 의도를 담았다. 한정된 면적과 층고, 주변 상황을 극복하면서 건축 작업이 영업에 도움이 될 수 있게 최선을 다했다. 나머지 몫은 이 자리에서 영업할 사람의 장사 수완에 달렸다.

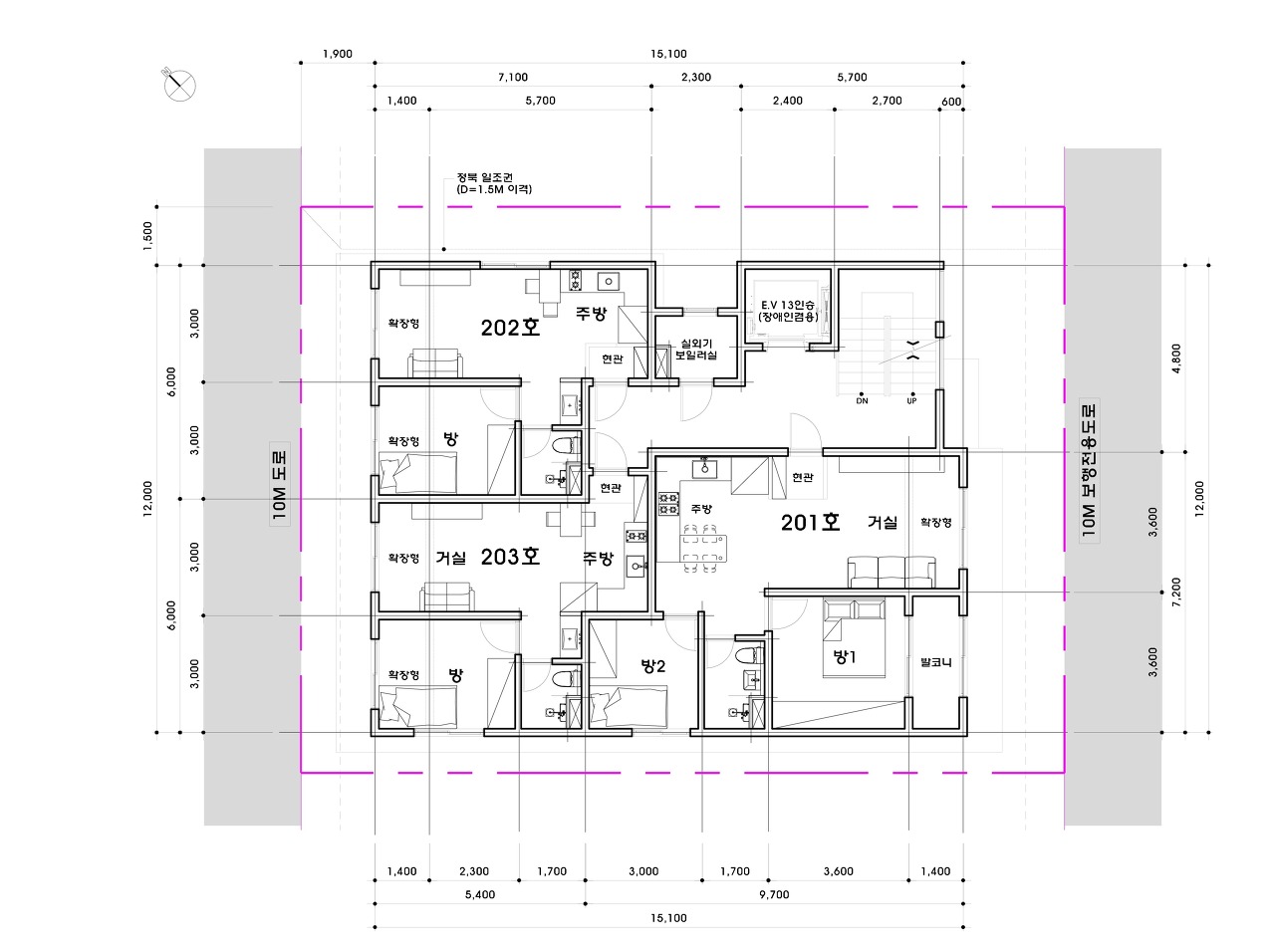
이층 다가구주택 – 적은 면적이라도 ‘우리집’으로 손색이 없네?
이층의 다가구주택은 세 세대가 들어간다. 거실 주방과 방 하나가 있는 투룸 두 세대와 방이 두 개가 있는 쓰리룸이 한 세대이다. 거실이 쓰리룸은 남향에, 투룸은 북향에 면한다. 쓰리룸은 신혼부부가 쓸 만한 집인지라 거실이 남향에 면할 수 있도록 배치를 했다.
‘룸’이냐 ‘집’이냐의 차이는 손님이 와도 괜찮은가 살피면 된다. 면적이 작은 집이지만 공적 공간인 거실과 주방이 알코브로 독립적인 영역이 확보되면 집이라고 할 수 있겠다. 공적 영역이 잘 갖추어지면 ‘라면 먹고 갈래?’라고 하면서 집에 손님을 청할 수 있으니까.
‘쓰리룸’ 세대는 아이 하나를 키우는 신혼부부가 쓰더라도 손색이 없게 구성되었다. 싱글로 사는 사람이라도 방 하나를 서재로 쓰면서 혼자 사는 자유를 누리기에 부족함이 없다. 남향과 조망까지 확보되니 탐내는 사람이 많을 것이다.

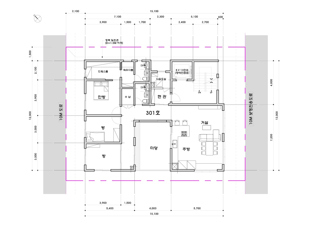
삼층 단독주택 – 전원주택은 너무 멀고 아파트는 너무 높다
아파트를 벗어나 살고 싶은 사람들이 많다고 한다. 도시에서 단독주택을 지어 살고 싶지만 땅값이 어마 무시해서 엄두를 낼 수가 없다. 전원에 단독주택을 지어서 살다가 다시 아파트로 돌아오는 사람들이 많은데 그 이유는 외로워 외로워서 못 살겠다는 것이다.
그래서 답을 구한 게 상가주택을 지어 수입원도 만들고 아파트를 벗어나 우리 식구를 위한 단독주택에서 살자는 것이다. 문제는 건폐율과 용적률을 꽉꽉 채운 상가주택에서 아파트 부럽지 않은 단독주택이 될 수 있을지 걱정이 되지 않을 수 없다. 이번 작업은 전원주택도 부럽지 않다고 자부하며 소개할 수 있는 결과를 만들었다.
일층 주출입구에서 자동문을 열고 들어가면 품격 있는 홀이 나온다. E.V를 타고 3층 홀에 내려 현관문을 열고 집에 들어서 중문을 열면 마당이 보인다. 이 마당은 거실 영역과 침실 영역을 나누는 역할을 한다. 한식 담장에 벽돌 바닥이 깔린 마당은 포근한 분위기로 외부 공간의 따스함이 밀려온다. 복도 끝의 침실은 마당으로 바로 나갈 수 있어서 한옥의 정취를 담았다.
거실 영역과 침실 영역이 별동으로 나뉘어 층고의 차이를 줄 수 있게 했다. 거실 영역의 층고는 4.2 미터이니 한옥 대청마루의 연등천장의 의미를 담았다. 거실 영역은 접이문을 달아서 거실에서 음악이나 영화를 높은 천장에서 얻을 수 있는 풍부한 사운드로 감상해도 침실에 영향을 주지 않는다. 손님이 찾아와서 밤늦도록 큰소리로 이야기해도 걸릴 게 없다.
마당에서는 무엇을 할 수 있을까? 아니 마당이 있으면 얼마나 할 수 있는 게 많을까? 바비큐 파티도 할 수 있고, 작은 텃밭에서 재배한 상추를 바로 먹을 수도 있겠다. 달 밝은 밤에 테이블을 놓고 찻자리를 가질 수도 있고, 와인을 마시면서 나누는 담소는 이보다 더 행복할 수 없지 않겠는가?





WHITE HOUSE-상가주택은 이렇게 근린생활시설과 다가구주택에서는 최적의 수익성을 얻고, 단독주택에서는 아파트보다 전원주택만큼 좋은 거주성을 가질 수 있겠다는 결론으로 건축주와 함께 확신하면서 설계가 마무리되었다. 이제 남은 건 설계도대로 공사가 잘 되는 것만 남았다. 식재료와 레시피가 아무리 좋아도 요리를 제대로 못하면 소용이 없으니 좋은 시공자를 만나 좋은 건축물로 드러나길 기대해 본다.
*도반건축사사무소는 명지동 국제신도시에 지은 상가주택 BALCONY HOUSE로 2021 BJEFZ건축상 주거부문 최우수상을 수상했습니다.
평범한 상가주택이 아닌 누구나 부러워할 상가주택을 짓고 싶다면 설계 작업에 혼신의 힘을 다해야 합니다.
댓글 작성
상가주택은 이렇게 지어야 한다
에코델타시티 상가주택 - WHITE HOUSE | 상가주택을 짓는 목적을 생각해보자. 우선 단독주택에 살면서 아파트에서 누릴 수 없는 개성 있는 주거 생활을 누릴 수 있다. 그러면서 일층은 근린생활시설
brunch.co.kr
에코델타시티에 짓는 상가주택-WHITE HOUSE
상가주택을 짓는 목적을 생각해보자. 우선 단독주택에 살면서 아파트에서 누릴 수 없는 개성 있는 주거 생활을 누릴 수 있다. 그러면서 일층은 근린생활시설, 이층에는 다가구주택을 넣어 임대
kahn777.tistory.com
부산 명지동 에코델타시티 단독 7블럭 상가주택 점포주택 다가구주택 단독주택 전원주택 근린생활시설 근생 원룸 투룸 설계 마당 처마 툇마루 기와 난간 핸드레일 일반주거지역 지구단위계획 용지 건축위원회 심의 경관자문 부산진해경제자유구역청 강서구청 건축상 엘리베이터 EV E.V E/V 승강기 폴리싱타일 이건 eagon 엘지 lg lx 하우시스 창호 창문 시스템 단열 기밀 도시가스
'상가주택 > 이안정怡顔亭' 카테고리의 다른 글
| 집짓기를 마무리하는 자리 (0) | 2023.07.10 |
|---|---|
| 바라보기만 해도 미소 지어지는 집 (0) | 2023.07.10 |
| 폭풍 시공 중, 炎天아 물렀거라 (0) | 2023.07.10 |
| 착공에 부쳐 (0) | 2023.07.10 |
| 3층에 마당있는 단독주택 (0) | 2023.07.10 |