곧 일인가구가 전체 가구수의 30%를 넘어선다고 합니다. 다른 식구 없이 혼자 생활하는 일인가구의 급속한 증가는 사회의 저변을 뿌리부터 변화시키고 있습니다. 혼밥이라고 하는 혼자 밥을 먹어야 하는 식사환경에서부터 의식주의 전반적인 부분에서 개선이 아닌 개혁이라고 할만큼 일상생활을 바꿔내고 있습니다.
일인가구 구성원은 대학생에서부터 독거노인까지, 연령대가 사회구성원의 전반적인 계층으로 확산되고 있습니다. 일인가구로 사는 집은 원룸오피스텔에서 시작되었지만 이제는 도시형생활주택이라는 초소형 아파트로 법제화되어 정식 주거유형으로 정착되었습니다. 이에 가세하여 월세수입을 겨냥해서 오래된 단독주택을 허물어 다가구주택을 짓거나, 단독주택 택지지역에서도 순수 단독주택이 아니라 법적인 용도가 단독주택인 다가구주택으로 지어지고 있습니다.
다가구주택은 법규적인 용도분류로는 단독주택이지만 실제로는 공동주택과 다름없지요. 적은 면적의 땅에 3~4층으로 짓다보니 법규적인 규제가 허용하는 용적률 틀에 억지로 짜맞춘 집이 되기 일쑤입니다. 원룸 투룸이라는 초소형주거는 한 건물에 세대수를 가능한 많이 넣기위해 애를 쓰다보니 주거환경의 질은 뒷전으로 밀릴 수밖에 없습니다.
더 이상 갈 곳이 없어지는 곳이 '집'이라고 했지만 지금도 우후죽순격으로 짓고 있는 원룸투룸이 '집'이라고 할 수 있는 최소한의 생활환경을 갖추고 있는지 돌아봐야 할 것입니다. 삶을 영위하기 위한 기초적인 생활만 해결할 수 있는 원룸투룸은 잠을 자고 씻는 정도의 생활 밖에 할 수 없다고 한다면 과언일까요? 우리나라의 전체 세대수의 30%가 주로 원룸투룸이라는 집에서 살고 있는데 그 생활이 어떨지 염려하지 않을 수 없습니다.
소형주거의 집합체로 원룸, 투룸, 스리룸이 한 건물에 담겨지게 된 프로젝트, 더 이상 갈 곳이 없어지는 집, 살만한 집으로 설계가 되었는지 살펴봅니다.

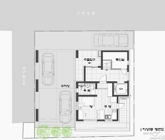
먼저 이 건물의 일층에 위치한 원룸 세대입니다.
남향으로 열린 대지의 일층에 위치하고 있는데,덱크까지 원룸에 사는 사람의 공간으로 쓸 수 있습니다. 샤워가 가능한 욕실, 친구가 찾아와 함께 밥을 먹을 수 있는 식탁까지 갖추었습니다. 햇살이 드는 창밖을 바라보며 책상에 앉으면 휴일에도 밖에 나가기 싫은 나의 '집'입니다.
이만하면 원룸이라고 달랑 싱글침대와 옷장 하나가 전부인 다른 가구와 비교되지 않습니까? 적어도 집이라면 손님이 오더라도 시간을 함께 보낼 수 있어야지요. 남향에다 데크까지 있는 나의 집, 스위트 홈입니다.
이제 이층에 있는 투룸, 쓰리룸을 살펴봅니다.

쓰리룸은 가족이 쓰게 될 집이라고 보고 남향에 배치를 했습니다. 사실 이 세대를 쓰리룸이라고 한 표현은 올바르지 않겠지요. 방 2개와 거실주방이 모두 남향에 면해 있어서 부부와 아이 한명이 여유롭게 살 수 있는 구성입니다.
다용도실을 남쪽 발코니로 써야하는 점이 좀 아쉽습니다. 4인이 앉아서 밥을 먹을 수 있는 테이블과 소파에 앉아 휴식을 취할 수 있는 거실공간도 부족하지는 않겠지요. 정해진 틀 안에서 해결해야 하는 한계를 감안한다면 나쁘지 않는 평면이라 생각합니다.
이제 북쪽에 위치한 투룸 세대를 살펴 봅니다. 현관문을 열고 들어오면 신발장, 주방과 식탁까지 갖춰져 있습니다. 식탁이 따로 있다는 건 집에서 밥을 편히 먹을 수 있다는 얘기가 됩니다.
더블 베드가 갖춰진 침실공간에는 화장대와 책상, 수납장까지 갖춰져 있습니다. 샤워가 가능한 욕실과 다용도실도 침실공간에 면해 있습니다. 남향의 햇볕이 들지 않는다는 것이 아쉽지만 이만한 평면구성이면 투룸도 자신있게 '집'이라고 할 수 있겠죠?

삼층평면이 제가 다우의 집짓기 작업에 함께 하게 된 근거가 되었습니다. 저를 찾아와서 조언을 부탁했을 때 세 가지를 수정하라고 했었지요. 첫째는 주방에 식탁을 둘 자리가 없다고 했고, 둘째는 안방의 욕실에 샤워부스가 없었으며 거실 앞에는 꼭 발코니를 두라는 내용이었습니다.
제가 작업한 삼층 평면은 그 세 가지가 다 충족이 되도록 작업이 되었습니다. 주방은 대형냉장고와 스탠드형 김치냉장고의 자리와 식탁도 정위치에 있습니다. 안방에 샤워부스가 설치된 욕실, 거실 앞의 발코니가 있어 확장형 아파트의 평면과는 사뭇 다른 주거환경이 보장되는 집이 되었습니다.
단독주택의 구성으로 4층에 있다는 것이 실감나지 않는 집주인, 정남향에 거실 앞의 발코니를 가진 다 갖춰서 살 수 있는 3층 세대,원룸에서 다락과 마당을 가진 단독주택까지 한 건물에 모인 이 프로젝트를 참 흥미롭게 작업했습니다.
이 '집'에 사는 사람들은 '더 이상 갈 곳이 없어지는 곳인 집'에서 살 수 있길 기대해 봅니다. 올해말이 되면 완공되어 입주를 할 수 있을 것이니 이 집에 사는 사람들을 만나서 얘기를 들어 보고 싶습니다.
설계를 하면서 '집에서 행복하기'라는 주제로 고민하면서 완성된 시나리오의 실제 결과가 완공된 집에서 만족하게 되어지길 빕니다.


무설자
무설자는 필명으로 김정관을 이름으로 씁니다.
건축사로서, 집은 만드는 것이 아니라 지어야 한다는 마음으로 건축설계를 업으로 삼고 있습니다.
어쩌다 수필가로 등단을 하여 건축과 차생활에 대한 소소한 생각을 글로 풀어쓰면서 세상과 나눕니다.
차인茶人으로서 차는 우리의 삶에서 사람과 사람을 이어주는 이만한 매개체가 없다는 마음으로 다반사로 차생활을 합니다.
도반건축사사무소 051-626-6261
댓글 작성
원룸도 당당하게 '집'이라고 할 수 있는 다세대주택-세상에서 하나 밖에 없는 다가구주택짓기5
무설자가 풀어내는 다가구주택 설계 이야기 -세상에 하나 밖에 없는 다가구주택 짓기 5 원룸도 당당하게 '집'이라고 할 수 있는 다세대주택 곧 일인가구가 전체 가구수의 30%를 넘어선다고 합니
kahn777.tistory.com
울산 다세대주택 다가구주택 단독주택 전원주택 도시형생활주택 소형주택 원룸 투룸 설계 1인 가구 마당 처마 다락 경사지붕 박공지붕 폴리싱타일 징크
'다가구세대주택 > 원명재' 카테고리의 다른 글
| 이 세상에 하나 밖에 없는 원명재라는 堂號의 우리집에 들다(이미지 보완 예정) (0) | 2023.06.29 |
|---|---|
| 울산 다우의 다가구 주택, 골조 시공 중 저녁을 함께 먹으며 (0) | 2023.06.26 |
| 4층에 있는 집인데 단독주택이 부럽지 않다? (0) | 2023.06.22 |
| 두 번 짓기 어려운 내 집 짓기, 어떻게 해야 하나? (0) | 2023.06.22 |
| 집, 더 이상 갈 곳이 없는 곳 (0) | 2023.06.22 |