건축물을 짓는 대지는 그림을 그리는 캔버스에 비유하기도 한다. 캔버스는 보통 사각형이지만 대지는 택지를 조성한 경우를 제외하고는 각양각색이다. 그나마 평지라면 다행이지만 경사진 땅이면 집을 앉히는데 어려움이 많다. 캔버스를 살 돈이 없어서 담배 내포장지인 은박지에 그림을 그린 이중섭 화가는 못으로 긁어서 명작을 남겼으니 대지의 모양을 탓할 일은 아니다.
이형의 대지라도 땅 생김새가 둔각으로 이루어졌으면 그나마 다행인데 예각으로 뾰족한 부분이 많으면 토지이용에서 허실이 많아진다. 또 대지 면적에 비해 폭이 좁다면 더욱 쓸모가 줄게 되고 대지 주변에 집이 붙어 있으면 공사하는데 다툼이 많을 수밖에 없다. 대지가 가진 모든 악조건을 가진 프로젝트를 소화해서 작업을 마쳤다. 이중섭 화가에 댈 수는 없겠지만 최악의 조건을 극복하고 건축주가 식구들과 행복하게 살 수 있는 좋은 집이 될 것이라 호평을 받고 공사를 시작했으니 내 능력도 자화자찬해도 되지 않을까?
어떻게 해답을 찾을지 실마리를 찾기가 쉽지는 않지만 악조건의 대지일수록 돋보이는 집이 될 가능성이 높다. 정방형에 가까운 평지의 대지는 일부러 비틀고 꺾어서 억지 외관을 만들 수는 없기 때문이다. 대지의 조건이 나쁜 그만큼 특별한 집이 될 소스가 되기 때문이다.
최악의 조건을 가진 대지

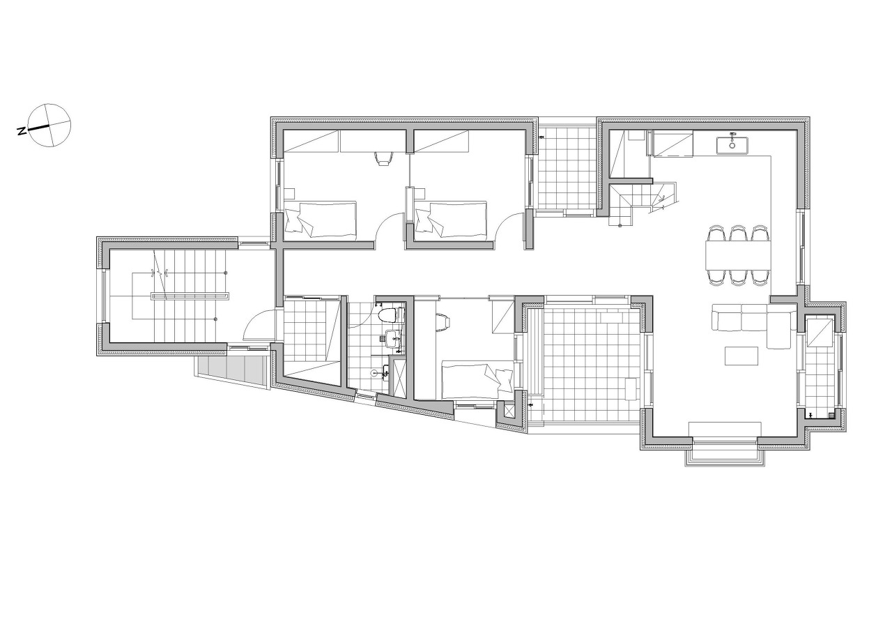
대지 형상은 도마에 칼이 붙어있는 것 같아 보인다. 남쪽으로 장방형의 도마가 있고 북쪽으로는 부엌칼이 놓여 있는 셈이다. 게다가 길이 방향으로 남북축이니 도로에 면해 있는 서향이 외관으로 정면이 되어야 할 대지 조건이다.
도로마저 평지가 아니라서 집을 앉히기가 예사로 어려운 땅이 아니다. 대지와 도로가 만나는 각 부분이 높이차를 가지게 되니 집의 전면에 나야 할 출입구의 위치 설정도 신중해야 하겠다. 그나저나 대지가 가진 조건이 설계 작업에 유리한 부분이 아예 없으니 제대로 된 집을 지을 수 있을까?
대지 면적이라도 여유가 있으면 숨 쉴 여지가 있겠는데 건폐율을 악착같이 찾아야만 되는 상황이다. 설계자에게는 이보다 더 어려울 수 없는 대지 조건인데 건축주는 최상의 결과를 바랄 게 뻔하다. 이를 어쩌나 속을 끓이지만 건축사님만 믿겠다며 건축주는 백 퍼센트 신뢰를 보낸다.

건축주가 짓고 싶은 집
건축주는 유통업을 하고 있어서 일층은 사업장, 이층을 주택으로 쓰기 위해 이 대지를 매입했다고 한다. 대지 조건으로 볼 때 땅값은 비교적 싸게 지불하지 않았을까 싶다. 누구라도 이런 조건의 땅에 제대로 쓸 수 있는 건축물이 들어설 것이라 생각할 수 있을까?
일층에 있는 사업장이야 대지의 형상에 맞춰 나오는 대로 쓰면 될 것이다. 그렇지만 이층에 들어갈 주택은 사정이 다르다. 아파트보다 거주 여건이 좋아야만 단독주택에 살 이유가 되기 때문이다. 아파트보다 살기 좋은 상가주택, 한정된 조건에 끼워 넣듯이 들어가는 주택이 과연 그런 만족도를 얻을 수 있을까? 평면을 구성할 대지의 폭에 여유가 없는 데다 서향으로 앉혀야 할 상황이기 때문이다.
건축주의 가족 구성은 큰 아이 둘은 독립해서 살고 있고 늦둥이가 있어서 방이 네 개나 있어야 한다. 일상에서는 아이 둘과 부부가 지내고 독립해서 지내는 아이들이 오면 모두 여섯 식구가 써야 하는 집이다. 방이 세 개만 있는 아파트는 이 가족의 구성원에게는 불편한 집이었겠다.
건축주가 살고 있는 아파트보다 살기 좋은 집, 온 식구가 다 모여도 만족하게 쓸 수 있는 집이어야만 계획 설계가 마무리될 수 있을 것이다.
만족하게 나온 설계안
대지에 집을 앉히기 위한 해법은 대지의 형상과 주변 여건을 파악하면 저절로 나오게 될 것이다. 기본적인 배치가 나오게 되면 평면을 구성하면서 불리한 부분을 개선하고나 부족한 내용을 채워나가면 될 것이다. 평면 얼개에서 불리한 부분은 서향집이고 부족한 부분은 평면의 폭이 좁아서 현관에서 집 안 끝까지의 동선이 길어진다는 점이다.
평면과 방위의 관계를 파악하는 건 매우 중요한 일이다. 동과 서는 햇살이 집 안으로 깊숙하게 들어오므로 계절과 상관없이 생활의 피로도를 높게 한다. 남향은 여름에는 태양의 고도가 높아서 햇살이 집 안으로 들지 않고 겨울에는 입사각이 낮으므로 집 안 깊숙이 들어온다. 그래서 남향집에 살기 위해서는 三代積善-삼대에 걸쳐 덕을 쌓아야 한다고 했을까?
삼대 적선의 공덕을 지어야 구할 수 있는 건 사실 대지를 말한다. 남향으로 열리지 않은 대지에 남향집을 지으려면 坐向좌향을 어긋나게 놓아야 하니 보통 어려운 일이 아니다. 그렇지만 주택에 살면서 서향집과 남향집은 생활의 안락함에서 비교할 수 없는 차이를 가지게 된다.

좌향은 서쪽, 남향은 창으로 들이고
좌향이란 집터에서 등진 방향과 정면으로 바라보이는 방향을 말한다. 집이 바라보는 방향, 좌향은 서향이지만 남향이 주는 혜택을 받을 수 있는 집을 지을 수 있다면 이 또한 적선의 공덕으로 복을 받는 게 아닐까?
김상용 시인의 시 ‘남향으로 창을 내겠소’를 낭송해본다.
남(南)으로/창(窓)을 내겠소 - 밭이 한참갈이/괭이로 파고/호미론 김을 매지요 - 구름이 꼬인다/갈 리 있소 - 새 노래는 공으로 들으랴오 - 강냉이가 익걸랑/함께 와 자셔도 좋소 - 왜 사냐건/웃지요
살면서 웃을 수 있는 일보다 더 좋은 게 있을까? 남향으로 낸 창으로 햇살이 드는 집에 살면 그냥 웃음이 나오지 않을까 싶다. 서향으로 앉은 집이지만 무조건 남향으로 창을 내야 한다는 나의 설계 원칙을 지키는 건 당연한 일이다.

거실과 침실 영역을 채 나눔 하고
나의 주택 설계 원칙은 가능한 침실과 거실 영역을 구분하는 것이다. 거실 영역은 한옥의 사랑채처럼 밤늦도록 시끄럽게 무엇을 하더라도 침실 영역에 지장을 주지 않아야 한다. 우리가 아파트에서 살면서 거실에서 TV를 보는 것 말고 무엇을 할 수 있는가?
거실에서는 볼륨을 높여 음악도 듣고 영화도 보고 손님이 와서 밤늦도록 얘기를 나눌 수 있으면 얼마나 좋을까? 그래서 우리집은 거실을 침실과 영역을 구분해서 무엇이든지 할 수 있도록 했다. 거실이 한옥의 사랑채 기능을 할 수 있어야 손님이 들 수 있다.
손님 중에 가장 귀한 손님은 사위와 며느리 이리라. 사위와 며느리가 와서 지내더라도 부모와 자식이 서로 편한 집이라면 하룻밤 묵어가도 좋겠다. 그렇게 되면 손주는 할아버지 할머니 차지가 되니 祖孫조손의 정이 각별해지니 이 얼마나 좋은가?
건축주가 늦게 본 늦둥이가 아직 초등학생이라니 우리집이라면 친구들을 데리고 와서 놀아도 좋다. 거실 공간이 독립되어 있으니 마음껏 놀아도 조용히 하라며 당부할 일이 없다. 이 정도라면 아파트에서는 얻을 수 없는 일상이 아닌가?

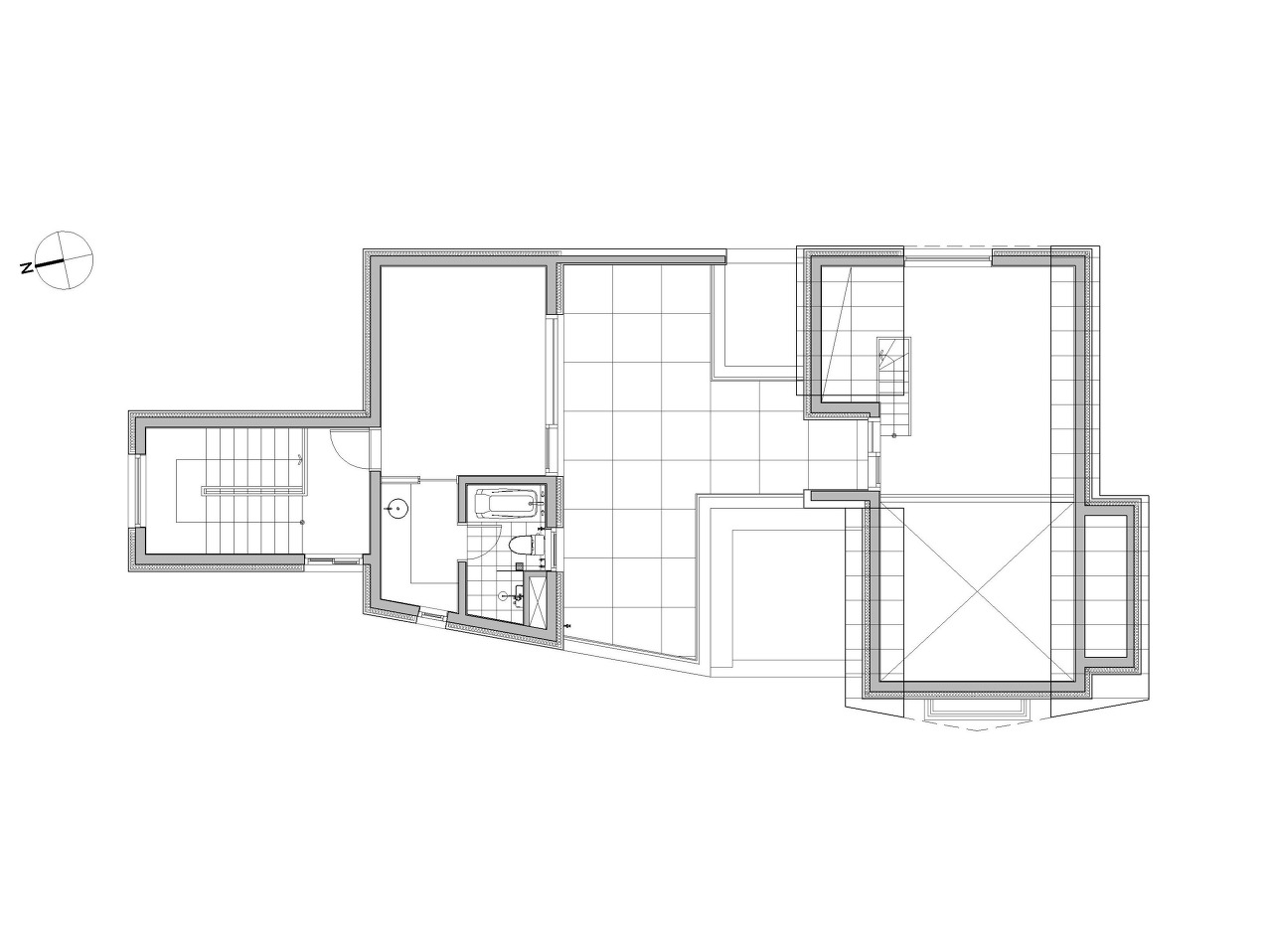
양명재는 두 개의 마당이 있다. 아랫마당은 거실과 서재 사이에 있는데 집 안에 양명한 기운을 들이고 외부 공간을 쓰는 즐거움을 누릴 수 있게 한다. 윗마당은 여유 있는 넓이를 가지고 집에서 다양한 외부 활동을 할 수 있는 공간이다.
아랫마당은 집 안과 밖을 매개하는 영역으로 들인 공간이다. 마당은 남쪽 햇살을 서재에 들이고 현관에서 거실로 이어지는 복도를 통해 집 안에 밝은 기운을 들인다. 거실과 서재, 복도에서 마당으로 바로 드나들 수 있으니 이층에 있는 집이지만 단독주택의 일상을 누릴 수 있다.
윗마당은 남향의 햇살을 드는 큰 방과 이어진다. 거실에서 다락으로 이어지는 동선이 마당으로 바로 연결되니 윗마당은 다양한 쓰임새를 가지게 된다. 거실과 다락, 다락과 윗마당의 관계 맺기는 양명헌의 풍부한 일상을 담아낼 것이다.
설 계 자: 도반건축사사무소 건축사 김정관
설계담당: 김풍부
대지위치: 부산광역시 남구 문현동 79번지
대지면적: 231㎡
건축면적: 132.76㎡
연 면 적: 277.86㎡
건 폐 율: 57.47%
용 적 률: 120.28%
층 수: 지상 3층
구 조: 철근콘크리트구조




異形이형의 대지에 집다운 집을 앉히기가 쉬운 일이 아니었다. 작업의 난이도가 꽤 있었지만 완성된 설계안은 건축주도 만족해하니 공사만 잘 되면 좋은 집이 될 것 같다는 확신이 든다. 경사를 가진 도로에 면한 서향의 대지는 너비도 여유가 없었지만 좋은 집이 가져야 할 조건이 충족된 설계안이 나와서 이를 데 없다.
집 안에 남향의 햇살이 가득하여 당호를 陽明齋양명재로 지어보았다. 설계자가 담아낸 남향이 주는 기운으로 건축주 식구들의 일상이 늘 밝고 활기가 넘치길 바란다.
댓글 작성
陽明齋양명재-서향 대지에 남향의 햇살이 담기는 집 / 문현동 상가주택
건축물을 짓는 대지는 그림을 그리는 캔버스에 비유하기도 한다. 캔버스는 보통 사각형이지만 대지는 택지를 조성한 경우를 제외하고는 각양각색이다. 그나마 평지라면 다행이지만 경사진 땅
kahn777.tistory.com
부산 문현동 상가주택 근생주택 점포주택 단독주택 근린생활시설 근생 설계 마당 처마 다락 경사지붕 박공지붕 외단열 역전지붕 복합자재 샌드위치 패널 판넬 이형대지 토목 개발행위 지목변경
'상가주택 > 양명재陽明齋' 카테고리의 다른 글
| YouTube 태박이 - 부산 도심속 3층 단독주택, 내 집 건축해서 살아보는 꿈을 이뤘습니다 (0) | 2023.11.24 |
|---|