BALCONY HOUSE - 2021 BJFEZ 건축상 최우수상 수상 (주거부문)

설 계 자 : 김정관 (도반건축사사무소 Tel 051-626-6261)
설계담당 : 김풍부
대지위치 : 부산광역시 강서구 명지동 3380-4 (명지국제6로 318번길 36)
대지면적 : 286.8 ㎡
지역지구 : 제1종일반주거지역
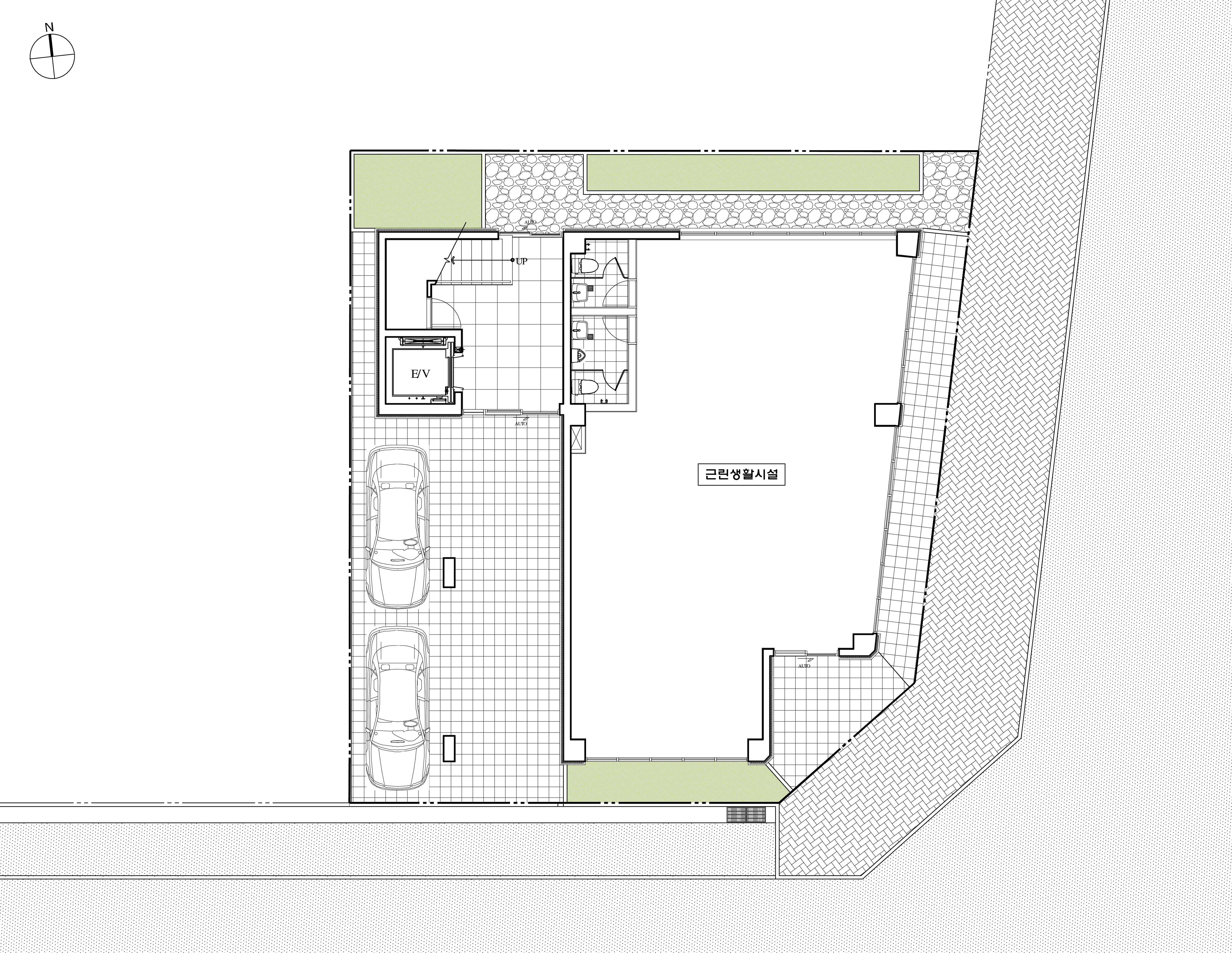
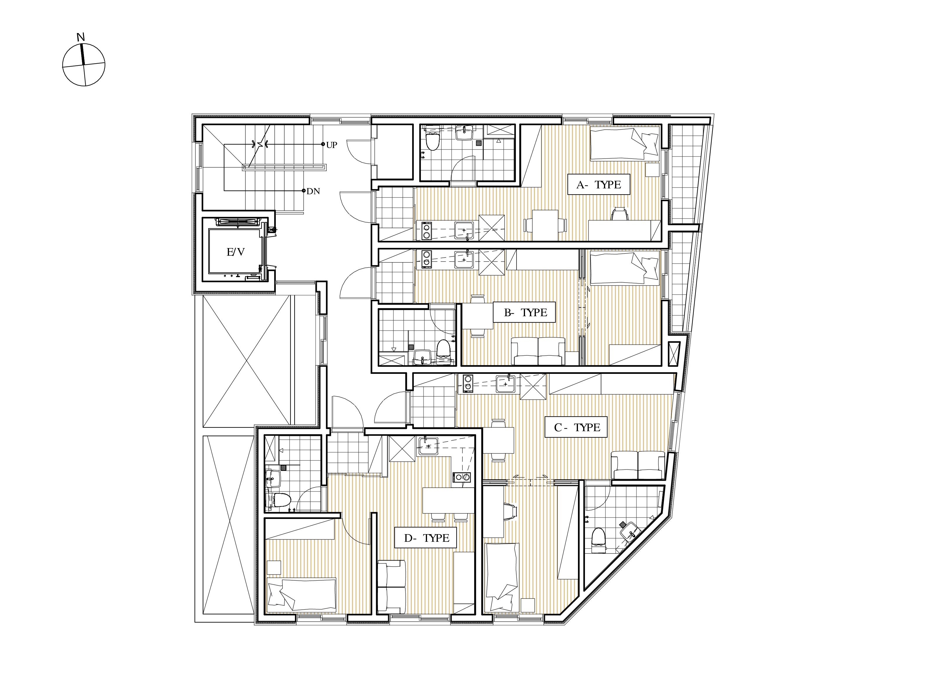
용 도 : 다가구주택 (5가구), 근린생활시설
건축면적 : 171.90 ㎡
연 면 적 : 422.82 ㎡
건 폐 율 : 59.94
용 적 률 : 147.43
구 조 : 철근콘크리트조
층 수 : 지상 3층
외부마감 : 폴리싱타일, 징크







BALCONY HOUSE는
마당과 발코니에서 대지가 가진 탁월한 여건인 공원과 강을 바라볼 수 있도록 설계한 집이다.
깎아낸 듯 만든 발코니는 외관의 조형미를 드러내고 집에서 내다보이는 경치를 바라보는 역할을 한다.
억지로 만든 외관이 아니라 쓰임새가 우선이 되면서 모양새도 드러내는 조형미를 추구했다.
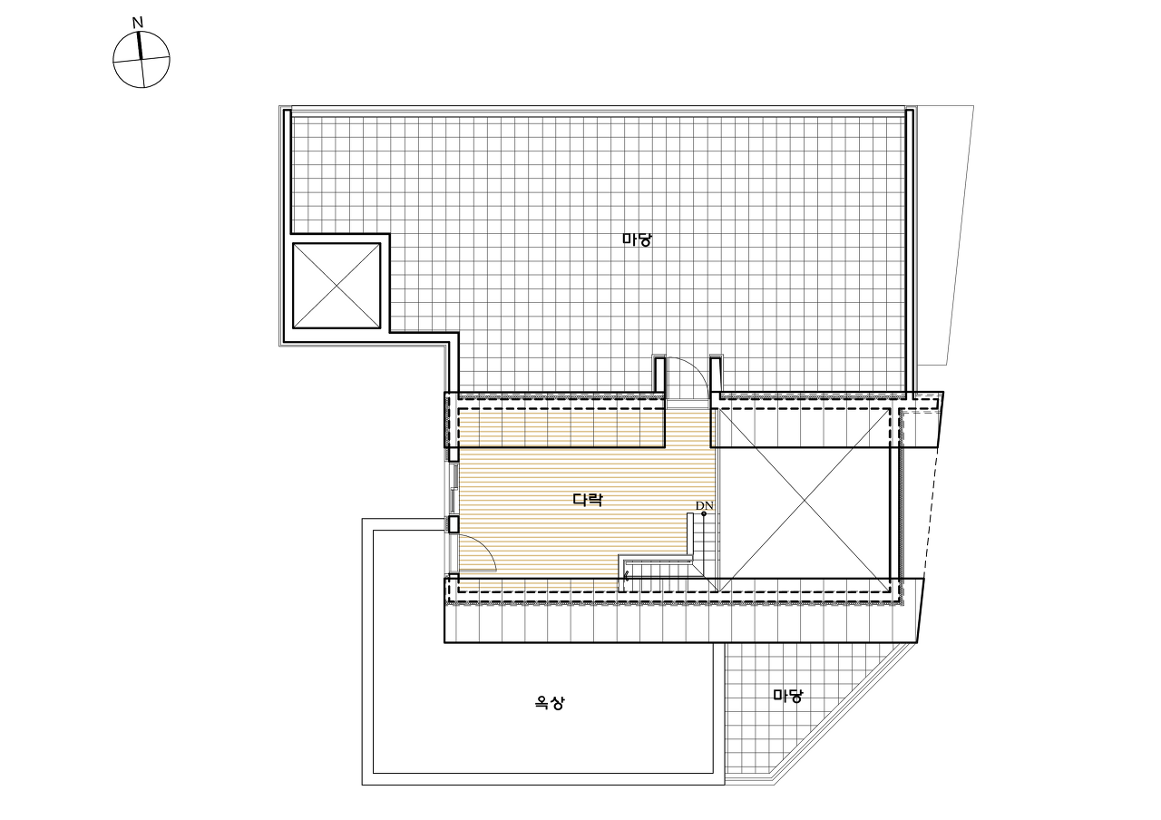
3층에 있는 단독주택은 두 개의 마당이 있어 일상 생활의 활기가 넘치는 집이다.
거실의 남쪽에 있는 작은 마당은 햇살과 비, 바람을 실내로 끌어들이는 역할을 한다.
옥상의 큰 마당은 거실에서 계단을 통해 출입하면서 외부 공간에서 누리는 일상의 즐거움을 가질 수 있다.
경사지붕은 외관을 돋보이게 하는 요소가 되면서 거실의 풍부한 공간감을 제공한다.
거실 상부는 높은 천정고를 가져 아파트에서는 얻을 수 없는 우리집만의 독창적인 공간을 가진다.
방의 상부에는 다락이 설치되어 충분한 수납 공간을 가지면서 옥상을 마당으로 쓸 수 있는 편리함을 제공한다.




댓글 작성
명지동 Balcony House 4 - 설계자와 건축주가 호흡을 맞춰 지어낸 집
BALCONY HOUSE - 2021 BJFEZ 건축상 최우수상 수상 (주거부문) 설 계 자 : 김 정 관 (도반건축사사무소 Tel 051-626-6261) 설계담당 : 김 풍 부 대지위치 : 부산광역시 강서구 명지동 3380-4 (명지국제6로 318번길 3
kahn777.tistory.com
부산 명지동 상가주택 다가구주택 단독주택 근린생활시설 근생 카페 원룸 투룸 가벽 설계 마당 처마 다락 경사지붕 박공지붕 징크 지구단위계획 부산진해경제자유구역청 강서구청 엘리베이터 승강기 EV E.V E/V 유리난간
'상가주택 > 발코니하우스' 카테고리의 다른 글
| 2021년 'BJFEZ 건축상' 최우수상 수상 (0) | 2023.07.06 |
|---|---|
| 아파트와는 다르고 단독주택도 부럽지 않은 집 (0) | 2023.07.04 |
| 상가주택을 짓는 목적은 안정적인 수익성 확보 (0) | 2023.07.04 |
| 두 마리 토끼를 잡을 수 있을까? (0) | 2023.07.04 |